Izpušni kompletHEZ9VDKE1 • 17006701
HEZ9VDKE1 • 17006701
1 / 0



Izpušni kompletHEZ9VDKE1 • 17006701
HEZ9VDKE1 • 17006701
115,00 €
Priporočena maloprodajna cena
Kje kupiti
Pokaži vse spletne trgovineV primeru, da kliknete na logotip prodajalca, bo vaš postopek nakupa sleden. Oglejte si Informacijami o varovanju osebnih podatkov. S klikom na logotip prodajalca sprejemate sledenje vašemu nakupu.
Izpušni kompletHEZ9VDKE1 • 17006701
HEZ9VDKE1 • 17006701
115,00 €
Priporočena maloprodajna cena
Kje kupiti
Pokaži vse spletne trgovineV primeru, da kliknete na logotip prodajalca, bo vaš postopek nakupa sleden. Oglejte si Informacijami o varovanju osebnih podatkov. S klikom na logotip prodajalca sprejemate sledenje vašemu nakupu.
Preverite združljivost aparata
Kako poiskati E-Nr
Številka modela (E-Nr) se nahaja na tipski ploščici aparata.
Tehnične specifikacije
Skupina izdelkov, za katero je dodatna oprema na voljo
Kuhanje in pečenje
Specifikacije
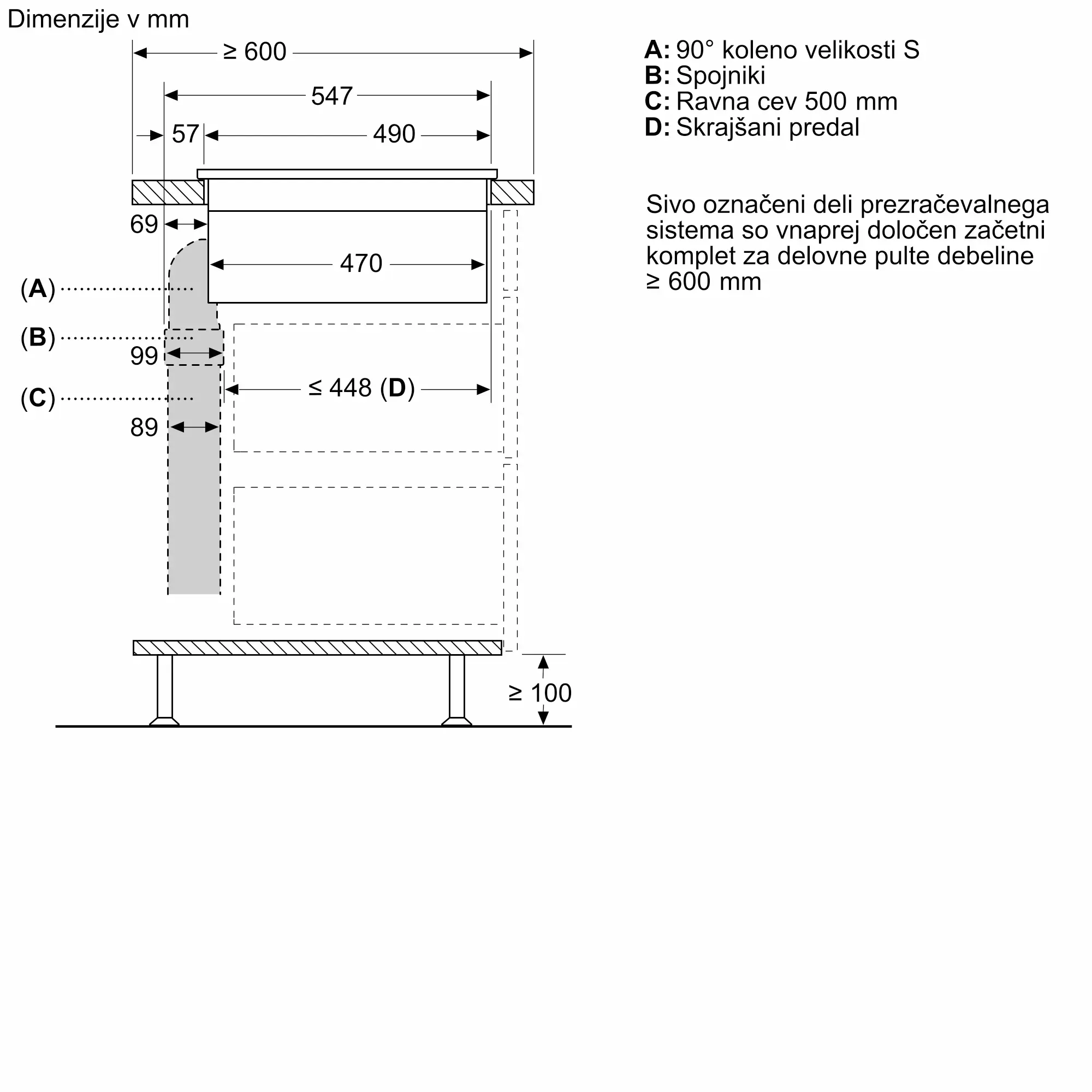
Osnovni komplet s priborom za konfiguracijo z odvajanjem zraka za kuhalno ploščo z vgrajenim modulom za prezračevanje v kuhinjah z globino delovne površine 60 cm ali več.
Komplet sestavljajo:
4 visokozmogljivi akustični filtri za znatno znižanje hrupa in močno izboljšano psihoakustiko.
Navpični 90° ploski odvodni element v obliki črke »S« (moški)
Priključna cev (ženska) za kombinacijo s ploskimi moškimi odvodnimi elementi
Ravni cevni element (moški, 500 mm)
Set je skladen s preizkusom z igličastim plamenom (po IEC 60695-11-5) in B1 razredom gradbenega materiala (po DIN-4102-1).
Dodatne odvodne elemente je treba naročiti posebej, in sicer na osnovi vaše specifične namestitve.